Ресторан, Тратторія “Рapa di Pasta”
Інноваційний ресторан із шармом Італії та професійним супроводом від компанії Є-group
Цей ресторан — справжнє поєднання стилів хай-тек, лофт та кантрі, що створює гармонійний і затишний простір для гостей. Відкрита кухня та бар дозволяють відвідувачам стати свідками магії створення авторських страв та напоїв.
Проект повністю реалізований компанією Є-group:
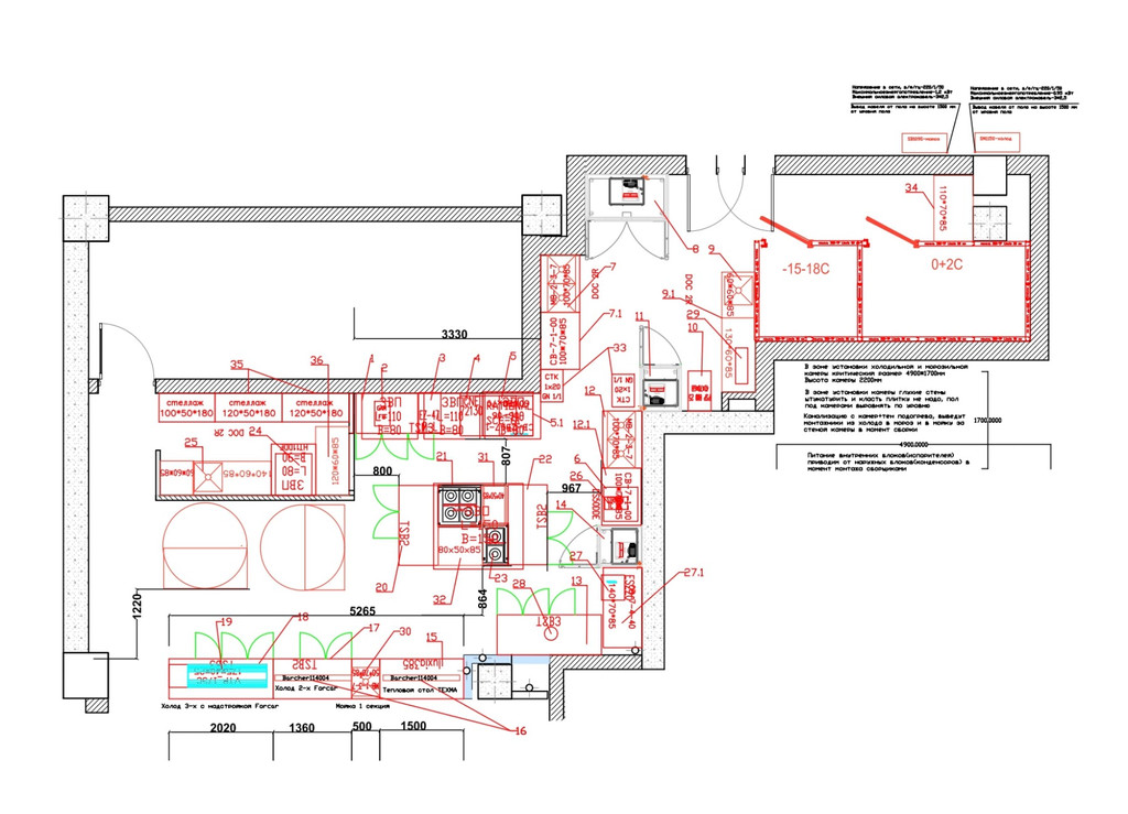
- Розробка технічних рішень та креслень відповідно до норм;
- Зонування виробничих, технічних і гостьових просторів;
- 3D-розміщення обладнання;
- Проектування водопостачання, електрики та вентиляції;
- Складання кошторису обладнання з усіма технічними параметрами.
Особливим елементом став запрошений амбасадор — професійний шеф-кухар С. Павленко. Під його керівництвом розроблено стартову концепцію закладу, меню та підібрано професійне обладнання.
Технологічні рішення:
- Гідрофільтрація диму дозволила встановити дров’яну професійну піч навіть у новобудові.
- Дві камери холоду та морозу з виносними агрегатами забезпечують ідеальну свіжість продуктів.
- Унікальна подвійна піч для піци Vulcan VERO 100 із дизайнерським графіті — справжній витвір мистецтва.
Вражаюче оснащення:
- Льодогенератор Hoshizaki (Японія);
- Соковитискач Robot Coupe (Франція);
- Барні холодильні шафи Forcar (Італія);
- Пароконвектомат GCE101T Moduline (Італія) з функцією копчення;
- Посудомийні машини COMPACK;
- Професійне холодильне обладнання ColdLine;
- Машина для приготування пасти Fimar MPF/2,5N із підрізним ножем.
Компанія Є-group забезпечила не лише постачання та монтаж обладнання, а й налаштування всіх систем, сервісне обслуговування, а також дооснащення інвентарем і професійним посудом.
Цей заклад став прикладом того, як ідеї, професіоналізм і передові технології здатні створювати кулінарні шедеври та неповторну атмосферу для гостей.






















